La Maddalena – A pochi passi dal centrro storico ampio e luminoso trilocale con incantevole vista mare – Immobiliare Murphy

  • €195.000
Via Ammiraglio Magnaghi, La Maddalena, SS, Italia
In vendita
Via Ammiraglio Magnaghi, La Maddalena, SS, Italia
  • €195.000

Descrizione

La Maddalena – A pochi passi dal centrro storico ampio e luminoso trilocale con incantevole vista mare – Immobiliare Murphy

A pochi minuti dal cuore del centro storico, proponiamo in vendita un elegante trilocale completamente ristrutturato che offre una spettacolare e incantevole vista mare sull’Arcipelago de La Maddalena.

L’immobile è situato al quarto e ultimo piano (senza ascensore), gode di una posizione privilegiata che garantisce una privacy e una panoramicità impareggiabili.

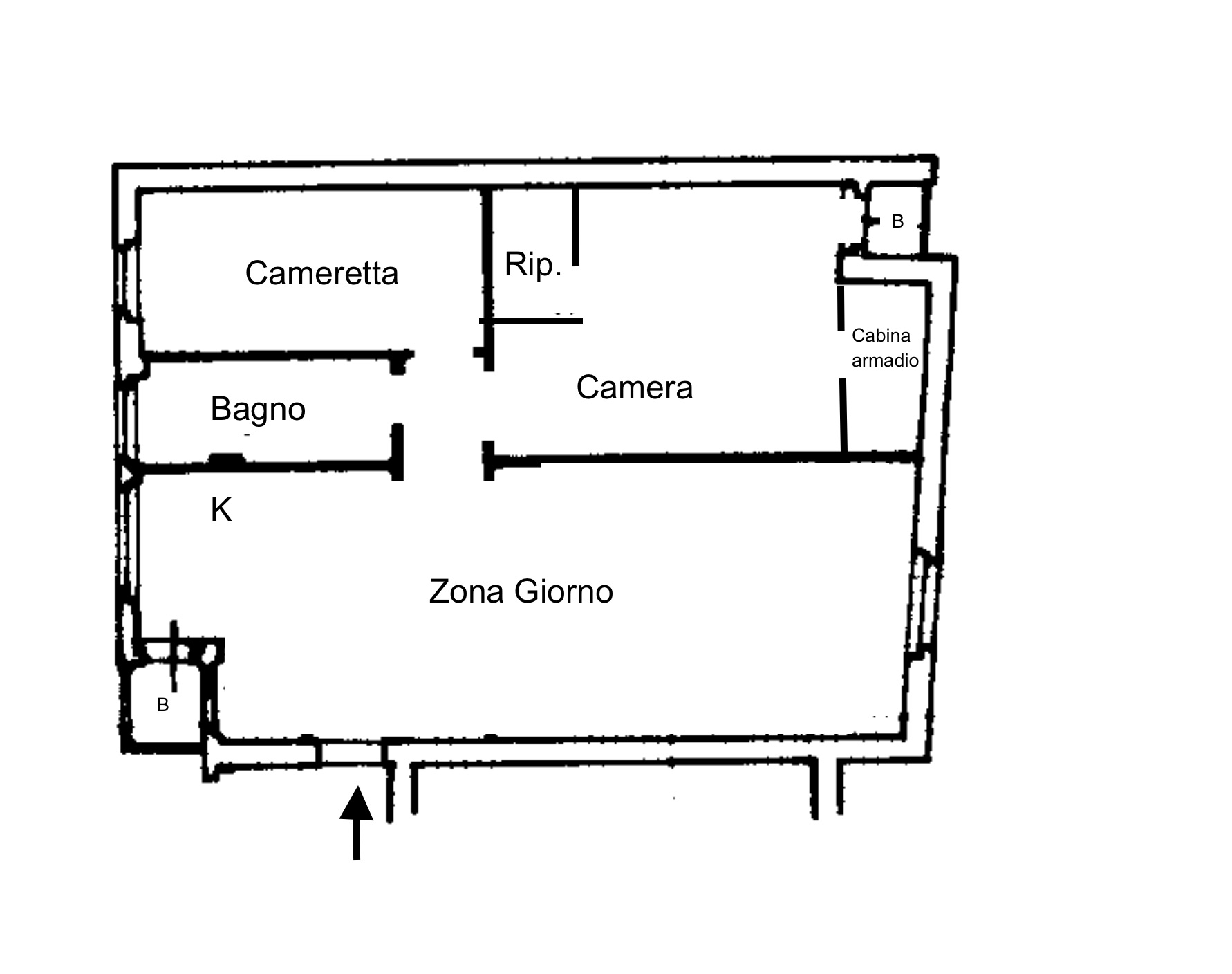
L’appartamento si compone da un ingresso su un ampio e luminoso soggiorno, dotato di una splendida porta finestra che incornicia una vista mare mozzafiato che spazia su tutto l’arcipelago.

La zona giorno si completa con un’area cottura ben organizzata, con adiacente un piccolo balcone di servizio.

Dal soggiorno, tramite un disimpegno, si accede alla zona notte, che include:

una camera da letto padronale che dispone di una spaziosa cabina armadio, un comodo ripostiglio e un balconcino anch’esso con vista mare; una cameretta ed un bagno ben rifinito e moderno, dotato di box doccia.

L’immobile si presenta in ottime condizioni interne grazie alla recente ristrutturazione, la sua ottima esposizione, gode di una fantastica luminosità e areosità che lo attraversano per tutto l’arco della giornata.

La panoramica vista mare offerta permette di godere delle bellezze dell’arcipelago e di beneficiare di uno scenario favoloso su Palau, Capo d’Orso e sulle isole di Santo Stefano e di Caprera.

La zona è eccellentemente servita con ogni comodità raggiungibile a piedi in pochi passi, tra cui negozi di vario genere, supermercati, bar, ristoranti e pizzerie, tabacchi, oltre a servizi essenziali come l’ospedale e il pronto soccorso. Sono inoltre disponibili numerosi parcheggi gratuiti.

Il cuore pulsante del centro storico dista anch’esso pochi minuti, rendendo la posizione ideale sia per la residenza che come casa vacanza.

L’arcipelago di La Maddalena

L’arcipelago di La Maddalena circondato da un mare limpido e cristallino è situato a nord-est della Sardegna, poco lontano dalla rinomata Costa Smeralda. Fanno parte di questo arcipelago un gruppo di 63 isole e isolotti di varie dimensioni tra cui spiccano le isole di La Maddalena, Santa Maria, Razzoli, Spargi, Caprera, Budelli e Santo Stefano. Isole grandi e piccole, con oltre 180 chilometri di costa che formano, insieme, un autentico capolavoro della natura: rocce scolpite dal vento, spiagge con sabbie bianchissime oppure magicamente rosa, insenature, profondità blu e bassi fondali dove ci si può riflettere come uno specchio. Ad eccezione delle due isole principali, La Maddalena e Caprera collegate via traghetto con il porto di Palau, tutte le altre isole sono raggiungibili solo con imbarcazioni private. Non vi è posto migliore per coloro che amano il mare e la natura.

  • Indirizzo Via Magnaghi SNC
  • Città La Maddalena
  • Codice postale 07024
  • Zona Centro Storico

Dettagli

Aggiornato su Gennaio 26, 2026 a 11:24 am
  • ID proprietà: Residenza Magnaghi
  • Prezzo: €195.000
  • Dimensioni: 99 mq
  • Camere da letto: 2
  • Bagno: 1
  • Anno di costruzione: 1967
  • Tipologia proprietà: Trilocale
  • Tipologia contratto: In vendita

Planimetrie

image

Descrizione:

360° Virtual Tour

Video

Panoramica

ID proprietà: Residenza Magnaghi
  • Trilocale
  • Tipologia proprietà
  • 2
  • Camere da letto
  • 1
  • Bagno
  • 99
  • mq
  • 1967
  • Anno di costruzione

Calcola mutuo

Mensile
  • Importo totale
  • Patrimonio
%

Classe Energetica

  • Classe Energetica: G
  • Indice di prestazione energetica globale:
  • A+
  • A
  • B
  • C
  • D
  • E
  • F
  • | Classe Energetica G
    G
  • H

Annunci simili

Confronta gli annunci

Confrontare
Marco Spagnolo
  • Marco Spagnolo