La Maddalena – Splendida casa Indipendente con terreno e vista su Caprera – Immobiliare Murphy

  • €850.000
Via Trinità, La Maddalena SS, Italia

Descrizione

La Maddalena – Splendida casa Indipendente con terreno e vista su Caprera – Immobiliare Murphy

In una zona residenziale dominata da una vista spettacolare sulle isole di Caprera e Santo Stefano, proponiamo in vendita una casa indipendente immersa in un ampio terreno di circa 15.000 mq, ideale per chi cerca privacy, natura e un contesto unico nel cuore dell’arcipelago.

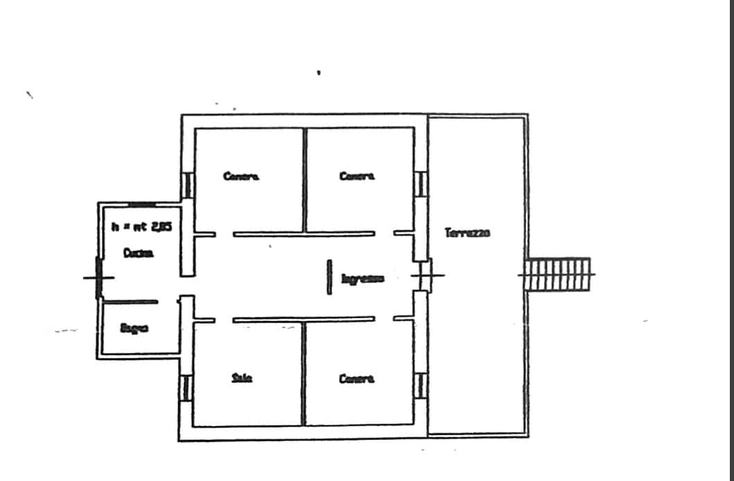
La proprietà, attualmente non abitata da tempo, si compone di: ampio ingresso, soggiorno con camino, sala, cucina, due camere da letto, bagno e un magazzino di circa 30 mq. A completare l’immobile, una splendida terrazza panoramica da cui godere di una meravigliosa vista su alcune delle isole dell’arcipelago.

Grazie alla sua posizione in zona urbanisticamente favorevole, l’immobile permette un ampliamento fino al 30% della superficie esistente e la realizzazione di una piscina, offrendo ottime opportunità di ristrutturazione e personalizzazione.

Strategicamente situata a pochi minuti di auto da Cala Gavetta e da Piazza Umberto I, la casa unisce il fascino del silenzio e della natura con la comodità di raggiungere rapidamente i servizi, i negozi e i ristoranti del centro.

L’arcipelago di La Maddalena

L’arcipelago di La Maddalena circondato da un mare limpido e cristallino è situato a nord-est della Sardegna, poco lontano dalla rinomata Costa Smeralda. Fanno parte di questo arcipelago un gruppo di 63 isole e isolotti di varie dimensioni tra cui spiccano le isole di La Maddalena, Santa Maria, Razzoli, Spargi, Caprera, Budelli e Santo Stefano. Isole grandi e piccole, con oltre 180 chilometri di costa che formano, insieme, un autentico capolavoro della natura: rocce scolpite dal vento, spiagge con sabbie bianchissime oppure magicamente rosa, insenature, profondità blu e bassi fondali dove ci si può riflettere come uno specchio. Ad eccezione delle due isole principali, La Maddalena e Caprera collegate via traghetto con il porto di Palau, tutte le altre isole sono raggiungibili solo con imbarcazioni private. Non vi è posto migliore per coloro che amano il mare e la natura.

  • Indirizzo Via Trinità
  • Città La Maddalena
  • Codice postale 07024

Dettagli

Aggiornato su Gennaio 26, 2026 a 11:32 am
  • ID proprietà: Residenza Trinita
  • Prezzo: €850.000
  • Dimensioni: 115 mq
  • Area: 15000 mq
  • Camere da letto: 2
  • Bagno: 1
  • Tipologia proprietà: Casa indipendente
  • Tipologia contratto: In vendita

Planimetrie

image

Descrizione:

Panoramica

ID proprietà: Residenza Trinita
  • Casa indipendente
  • Tipologia proprietà
  • 2
  • Camere da letto
  • 1
  • Bagno
  • 115
  • mq
  • 15000
  • Dimensione terreno mq

Calcola mutuo

Mensile
  • Importo totale
  • Patrimonio
%

Annunci simili

Confronta gli annunci

Confrontare
Marco Spagnolo
  • Marco Spagnolo